Webdesign Dresden, Altenberg und Umgebung
Webdesign Dresden, Altenberg und Umgebung
CMS-System für Webseiten und Internetportale
CMS-System für Webseiten und Internetportale

Denkmal
Aktuelles Sanierungsangebot:

Eigentumswohnungen


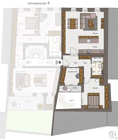
In Pirna, Schmiedestr. 41

Schlüsselfertige Komplettsanierung.

Hier entstehen 5 Eigentumswohnungen
zwischen 79 bis 99 m²

Spätgothisches Denkmal in der Altstatt

unweit des Marrktes, ca. 70m vom Markt/Rathaus (1 Min Fußweg)


  • Schlüsselfertige Komplettsanierung
  • Wohnung im Erdgeschoss (ca. 79m²) mit Terrasse.
  • Zwei Obergeschosswohnungen (1.OG, ca. 78m²) mit Balkone
  • Zwei großzügige Massionettwohnungen (ca. 100m²) mit Balkon / Terrasse
  • Romantisches Innenhofambiente
  • Fahradraum / Kellerabteile für jede Wohneinheit
  • Aufarbeitung des Sandsteineingangsportals mit historischer Haustüre
  • Hochwertige Ausstattung mit Parkett und Fußbodenheizung (in fast allen Wohnungen)
  • Alte Weinkeller für 3 Wohnungen.

Lage und Visualisierung:


Telefon   035052 27077
✔ Akzeptieren Cookie Einstellungen: Durch Bestätigen des Buttons "Akzeptieren" stimmen Sie der Verwendung von Cookies für Analysen und personalisierte Inhalte durch uns oder Drittanbieterseiten gemäß unseren Datenschutzhinweisen zu. Sie können die Cookienutzung über Einstellungen anpassen.
Privatsphäre-Einstellungen
Um Ihnen ein optimales Webseiten Erlebnis zu bieten, setzen wir Cookies ein. Dies sind kurze Zeichenketten, welche die Website in Ihrem Browser hinterlegen darf. Dazu zählen Cookies für den Betrieb und die Optimierung der Seite als auch zum Speichern von Einstellungen und Funktionalitäten. Wir möchten Ihnen die Wahl geben, welche Cookies Sie zulassen. Ihre Wahl können Sie jederzeit durch löschen der Cookies für diese Seite ändern.

Cookies dieser Kategorie dienen den Grundfunktionen der Website. Sie dienen der sicheren und bestimmungsgemäßen Nutzung und sind daher nicht deaktivierbar.



Cookies dieser Kategorie ermöglichen es, die Nutzung der Website zu analysieren und die Leistung zu messen. Sie tragen zudem zur Bereitstellung nützlicher Funktionen bei. Insbesondere Funktionen von Drittanbietern. Das Deaktivieren wird diese Funktionenj blockieren. Einige Inhalte – z.B. Videos oder Karten können ggf. nicht mehr dargestellt werden. Außerdem erhalten Sie keine passenden Artikelempfehlungen mehr.



Marketing-Cookies werden von Partnern gesetzt, die ihren Sitz auch in Nicht-EU-Ländern haben können. Diese Cookies erfassen Informationen, mithilfe derer die Anzeige interessenbasierter Inhalte oder Werbung ermöglicht wird. Diese Partner führen die Informationen unter Umständen mit weiteren Daten zusammen.

Einstellungen speichern       ✔ Alle akzeptieren